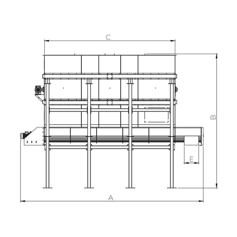
Extruder Feeding Unit

It provides effective discharge of various powdery or granular materials in different industries.

MODEL Kapasite (t/s)
Capacity (t/h)
Hacim (m³/s)
Volume (m³/h)
A B C D E F
YMS KB-25 12 25 6960 5070 5000 2520 550 1000
YMS KB-50 25 50 7970 6000 6000 3150 700 1000
* Capacity values vary depending on the product to be ground.
#Similar Products

Industry-Specific Production Line Solutions